Williamsburg, Brooklyn
Richardson Art Studio
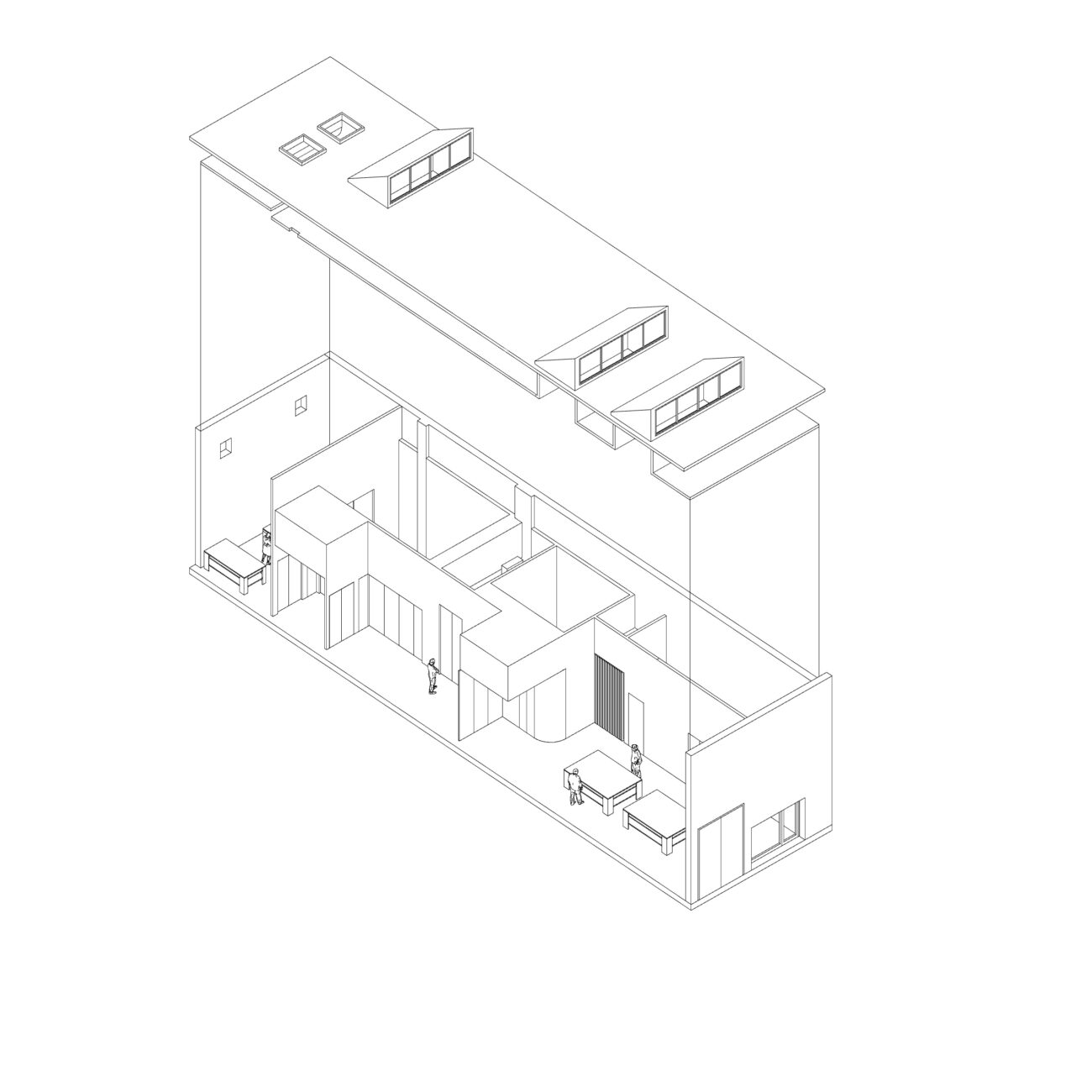
Renovation of an existing warehouse building in Willliamsburg for an art studio, exhibition, and print making space.




Renovation of an existing warehouse building in Willliamsburg for an art studio, exhibition, and print making space.



