Cannavale-Byrne Townhouse
A classic Italianate nicknamed “The Pink House” fuses historic charms and Scandi detailing for the two actors.

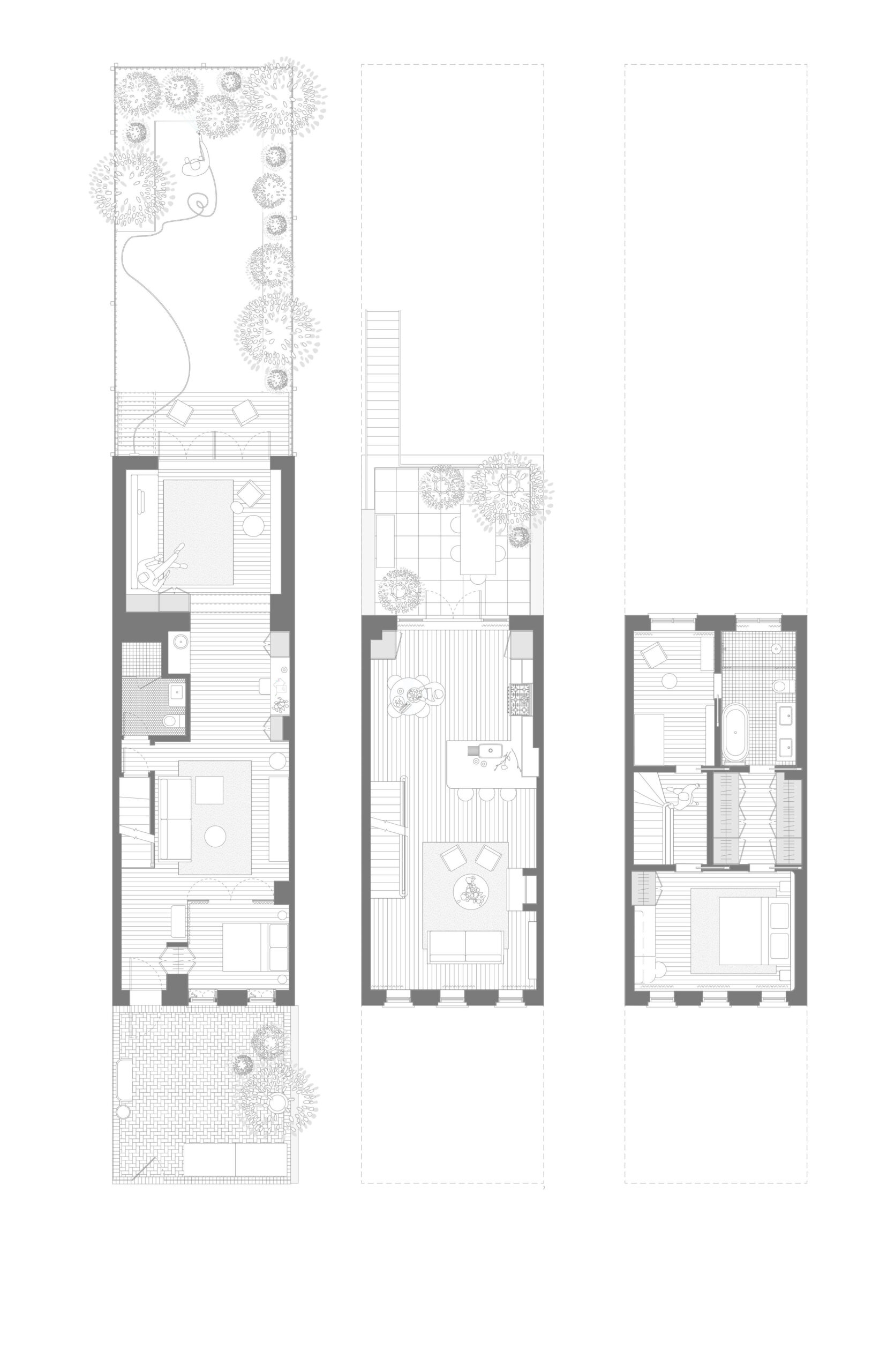
FTA’s gut renovation and addition of a 2,700-square-foot Boerum Hill brownstone, originally built in 1899 and affectionately known as “The Pink House,” for a creative couple with two young children-highlights the building’s rich history by restoring historic detail and preserving aesthetic choices made by its imaginative former owners while simultaneously expanding and refining the space with bright, sumptuous details and smooth, curvaceous surfaces. The interior plan is united by a geometry of soft plaster curves (fireplaces, skylights, hood enclosures, stairs, arched openings), as well as a consistent color palette of pale pink and dark green, and a material palette of aged brass, leather and white oak.












